1800 387 539 ​​​​​​​​​​​​​​ 
Rosewood
keyboard_arrow_left
keyboard_arrow_right








keyboard_arrow_left
keyboard_arrow_right








 Rosewood 
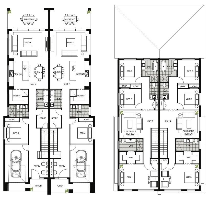
The Rosewood is a contemporary 4-bedroom duplex designed to meet NSW CDC compliance standards.

This elegant home features an open-plan living area that integrates the living room, dining space, and a gourmet kitchen with high-end appliances and a sleek island bench.

Large sliding doors lead to a private patio, ideal for alfresco dining. The ground floor includes a versatile fourth bedroom or home office with a stylish bathroom.

The upper floor houses a master suite with a walk-in wardrobe and luxurious ensuite, two additional bedrooms with built-in wardrobes, a family bathroom, and a secondary living area.
 Floor Plan 
 Specifications 
  • 8
  • 6
  • 4
  • 2
Width 13.16m
Length 26.52m
Minimum Lot Width 15m
Total Size 555m2
Gross Floor Area 396m2
1800 387 539Enquire Now
Want to know what’s possible for your property? 
Our Experts will give you the answers. Enquire today.

OBLIGATION FREE SITE ASSESSMENT & QUOTE

settings
settings
settings
settings
Fixed Price Means Fixed Price
EVERY BOX IS TICKED
The Dixon Homes team draws from 80,000 past projects to give our clients a smooth home creation process and a finished product with a 50-year structural warranty.
Proudly creating beautiful homes since 1959.
Terms    |    Privacy
[bot_catcher]