1800 387 539 ​​​​​​​​​​​​​​ 
Willow
keyboard_arrow_left
keyboard_arrow_right








keyboard_arrow_left
keyboard_arrow_right








 Willow 
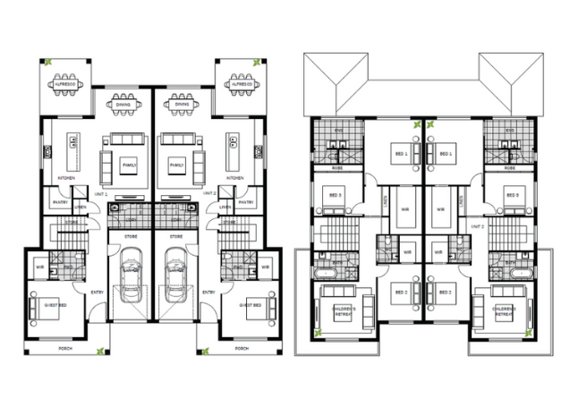
The Willow is an expansive and sophisticated duplex, expertly designed to optimize a 20m frontage in compliance with NSW CDC standards. This contemporary home blends luxury with practicality, featuring a ground-floor bedroom with a walk-in robe and two-way bathroom, ideal for guests or a home office. At the heart of the home is an open-plan living area that seamlessly integrates the living room, dining space, and a chef's kitchen with a large walk-in pantry and high-end appliances. Sliding doors lead to a spacious patio, perfect for outdoor entertaining. The upper floor offers a luxurious master suite with a walk-in wardrobe and ensuite, a second bedroom with a walk-in robe, a third generously sized bedroom, and a versatile additional living area. The Willow's design maximizes space and comfort, offering an elegant and functional living environment.
 Floor Plan 
 Specifications 
  • 8
  • 6
  • 4
  • 2
Width 18.2m
Length 20.9m
Minimum Lot Width 20m
Total Size 566.6m2
Gross Floor Area 419.6m2
1800 387 539Enquire Now
Want to know what’s possible for your property? 
Our Experts will give you the answers. Enquire today.

OBLIGATION FREE SITE ASSESSMENT & QUOTE

settings
settings
settings
settings
Fixed Price Means Fixed Price
EVERY BOX IS TICKED
The Dixon Homes team draws from 80,000 past projects to give our clients a smooth home creation process and a finished product with a 50-year structural warranty.
Proudly creating beautiful homes since 1959.
Terms    |    Privacy
[bot_catcher]